

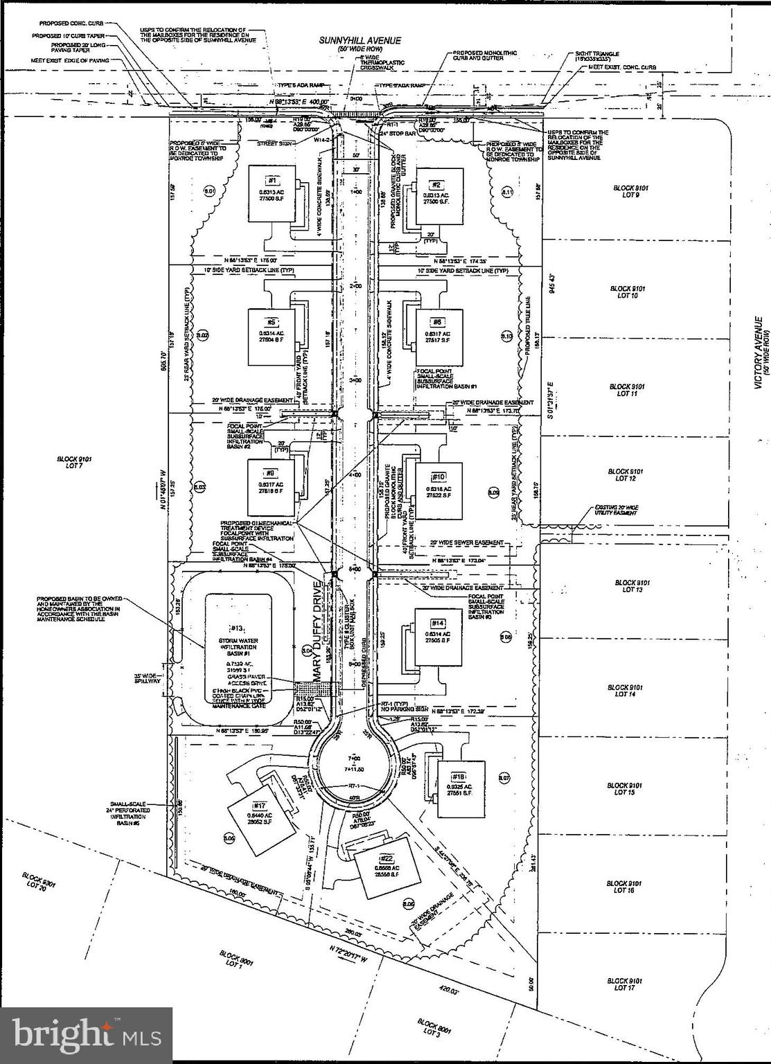
RESIDENTIAL DEVELOPMENT OPPORTUNITY: Rare opportunity to acquire a fully approved 10-lot residential subdivision in desirable Monroe Township, New Jersey. Buyers should independently verify with the township any potential tax abatement opportunities associated with the lots. Skip the entitlement risk, township meetings, added costs, and lengthy approval timelines—subdivision approvals are already in place, allowing you to move directly into site work and vertical construction planning. Property Highlights:10 buildable lots with final subdivision approvals in hand. Located in Monroe Township, NJ, a strong growth market with public sewer availability. Subdivision approvals are complete, with supporting documents available upon request. Phase I Environmental Report completed on June 24, 2025, and available for review. Prime location with convenient access to major roadways, schools, shopping, and everyday amenities. Ideal For: Builders, small- to mid-size developers, and investor groups seeking a manageable project to quickly add to their development pipeline. Due Diligence / Access: Subdivision approvals, plans, and related documents are available for review upon request.
| 3 weeks ago | Listing first seen on site | |
| 3 weeks ago | Listing updated with changes from the MLS® |
Compare listings
Compare
Did you know? You can invite friends and family to your search. They can join your search, rate and discuss listings with you.